Hytte – Gålågynten
Innholdsrik hytte
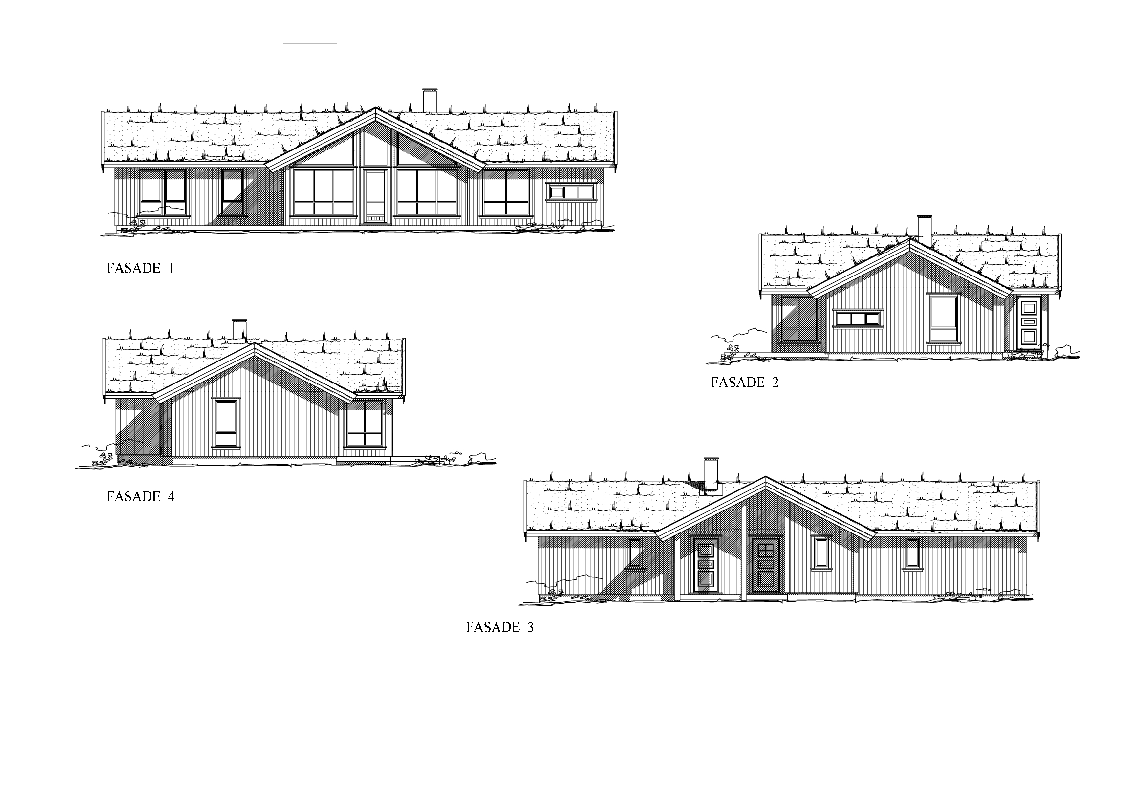
Gålågynten er en innholdsrik hytte med egen TV-stue, tre soverom, to bad, eget vaskerom og gjestetoalett. Overbygd inngangsparti med inngang til utebod. Stuedelen har åpen himling og en fantastisk fasade som gir lys og luft. Hytta inneholder også tre boder.
TEKNISKE DATA:
| *BRA: 119 m2 *BYA: 137 m2 Soverom: 4 |
Baderom: 2 Hems: Nei *Terrasse: Ja (35,8m2) |
*Arealene er hentet fra tegninger og kan avvike fra NS 3940.
Gålågynten fra Tindehytter er mer enn bare en hytte; godt plassert i et av Hallingdals vakreste hyttefelt «Lyseren», er den en oase av ro og harmoni i naturskjønne omgivelser. Med sine elegante linjer og smarte løsninger er denne hyttemodellen skapt for å møte dine behov, samtidig som den ivaretar den tradisjonelle norske hytteestetikken. Den romslige stue- og kjøkkenløsningen gir deg muligheten til å samle familie og venner, mens de store vinduene slipper inn naturlig lys og gir deg en fantastisk utsikt mot fjellene. Enten du ønsker en helg med avslapning eller et utgangspunkt for eventyr i naturen, er Gålågynten det perfekte valget for deg som setter pris på kvalitet og stil.
